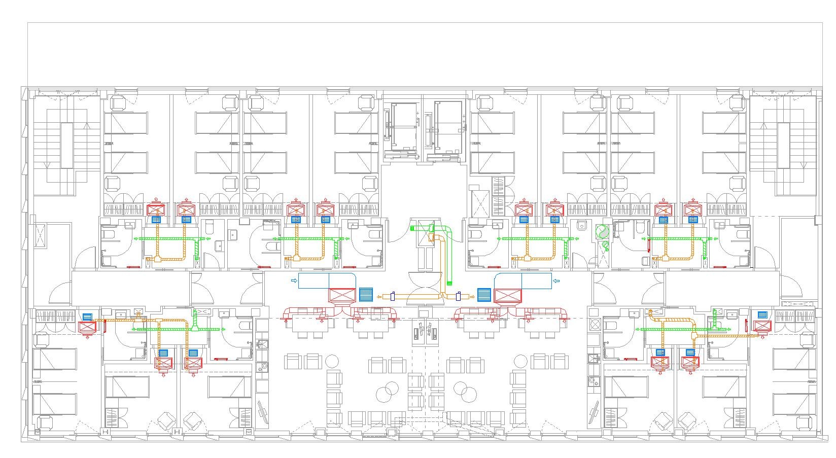
Residencia de Mayores y Centro de Día

 

  • Propietario: FPR LLACUNA 32
  • Situación: Calle Llacuna 30-32 Barcelona
  • Superficie total: 3.500 m2
  • Arquitecto: Marc Trepat Carbonell- Victor Bergnes de Las Casas
  • Comentarios: Proyecto y dirección de obra de las instalaciones de una residencia para Mayores